каталог alh компания alt ипотека избранное позвонить
Подать объявление

Продается таунхаус в коттеджном поселке «Villaris del Mar»

17 500 000
130 988 2
В избранное
Подписаться
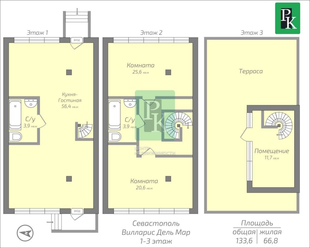
Кол-во этажей: 2
Участок:  3.08 сот
Площадь: 133.6 м2

В продаже видовой таунхаус общей площадью 133,6 м2 . 

Таунхаус расположен в современном коттеджном поселке (с закрытой территорией)  “Villaris del Mar” на мысе Фиолент, имеет все необходимое для комфортного проживания в любое время года, либо для бизнеса, можно сдавать круглогодично. 

На первом этаже находится кухня – гостиная 35,8 м2 , пространство для отдыха 20,6 м2 с выходом на террасу и санузел 3,9 м2, в котором расположена электрическая сауна. 

На втором этаже, общей площадью 61,6 м2 расположены 2 спальни 25,6 м2 и 20,6 м2 и санузел – 3,9 м2.

Третий этаж – технический, 11,7 м2 с выходом на эксплуатируемую крышу с прекрасным видом на море. 

Высота потолков 3 м.  Это не просто дoм — это ваш новый комфортный и уютный уголок c собственным учacткoм. Просторный таунхаус с удобной и практичной планировкой. Сделан косметический ремонт. Отопление от трех мощных кондиционеров (сплит система) и дополнительно масляные обогреватели. Новым собственникам остается вся мебель и техника.

Рассмотрим наличный вид расчета.

Поселок оснащен отдельной линией электроснабжения, своя вода (скважина) подается без перебоев, есть система септиков (канализация). 

Чистое открытое море, удобный спуск к своему пляжу, охраняемая территория и развитая инфраструктура поселка: магазин, детская площадка, мангальная зона, вечером можно любоваться закатом.

До остановки общественного транспорта 2 минуты, откуда можно уехать в разные части города.

Звоните, отвечу на все интересующие вопросы и организую показ!

Читать подробнее
alt
Юридическая проверка

alt
Комлева Анастасия
Специалист ОРП
Отдел по работе с покупателями
+79802431274
Или оставьте ваш номер,
и я вам перезвоню

    alt
    Комлева Анастасия
    Специалист ОРП
    Отдел по работе с покупателями
    +79802431274
    Или оставьте ваш номер,
    и я вам перезвоню

      Объект на карте
      Похожие объекты
      Блог о комфортной жизни