каталог alh компания alt ипотека избранное позвонить
Подать объявление

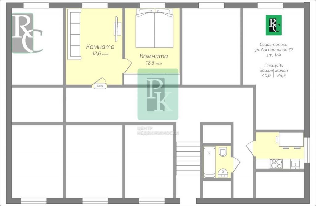
Двухкомнатная квартира на Арсенальной 27!

3 800 000
108 883 2
В избранное
Подписаться
2-комнатная
1/4 эт.
Площадь: 34.9 м2

В продаже светлая двухкомнатная квартира на Арсенальной 27!


Ипотека возможна ТОЛЬКО Сбербанка. Можно с использованием маткапитала или жилищного сертификата.

 
Квартира на первом высоком (над цоколем) этаже четырехэтажного блочного дома в Нахимовском районе. 
Состоит из двух смежных комнат площадью 12,6 и 12,3 кв.м.(очень просто сделать изолированными). В свою выделенную кухню и свой санузел проход через общий чистый коридор. Кухня площадью 6 кв.м. , санузел 4 м. кв.

В цоколе дома есть помещение для хранения продуктов или мастерской, площадью 8 кв.м.
 Окна пластиковые, трубы заменены на пластиковые, есть бойлер, установлено электрическое индивидуальное отопление (тариф на дом снижен), утеплен фасад снаружи. 


На этаже четыре квартиры, соседи дружелюбные, поддерживают порядок.
Уютный и зеленый дворик с благоустроенной придомовой территорией, новой детской площадкой, парковкой и специально оборудованным местом для сушки белья. 
Во дворе два продуктовых магазина.


Рядом с домом расположена остановка общественного транспорта, школы 41 и 26, детские сады 25,36 и 91, ДЮСШ-7, Стадион ФК Севастополь, Станция юных техников, супермаркет Novus, аптека, рынок, детский парк Лукоморье, Малахов Курган. До центра города 5 мин, до моря 10мин.на автомобиле.


Квартира отлично подойдет как для постоянного проживания, так и для сдачи в аренду.
Документы РФ проверены юристом и готовы к сделке!


С удовольствием отвечу на все интересующие вопросы и проведу показ в удобное для Вас время! Звоните сегодня!

Читать подробнее
alt
Салахутдинова Эльвира
Специалист ОРП
Отдел по работе с покупателями
+79785807607
Или оставьте ваш номер,
и я вам перезвоню

    alt
    Салахутдинова Эльвира
    Специалист ОРП
    Отдел по работе с покупателями
    +79785807607
    Или оставьте ваш номер,
    и я вам перезвоню

      Объект на карте
      Похожие объекты
      Блог о комфортной жизни