каталог alh компания alt ипотека избранное позвонить
Подать объявление

Здание 534 м2 в центре

640 000
В избранное
Подписаться
Тип объекта: Торговая площадь
/5 эт.

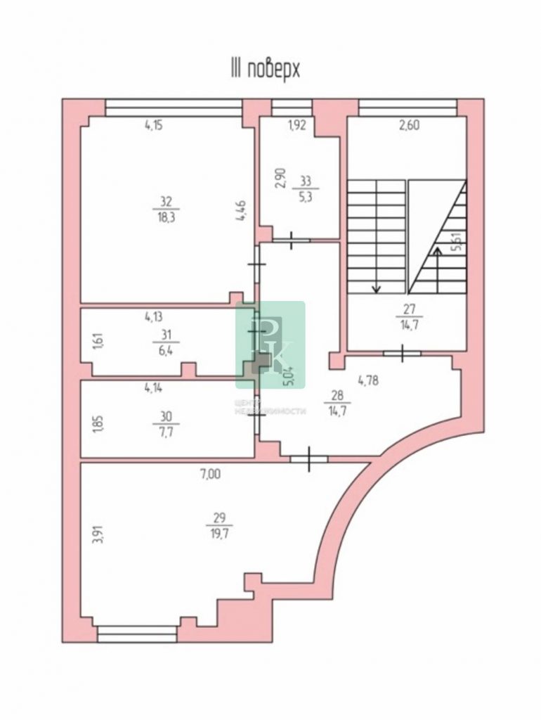
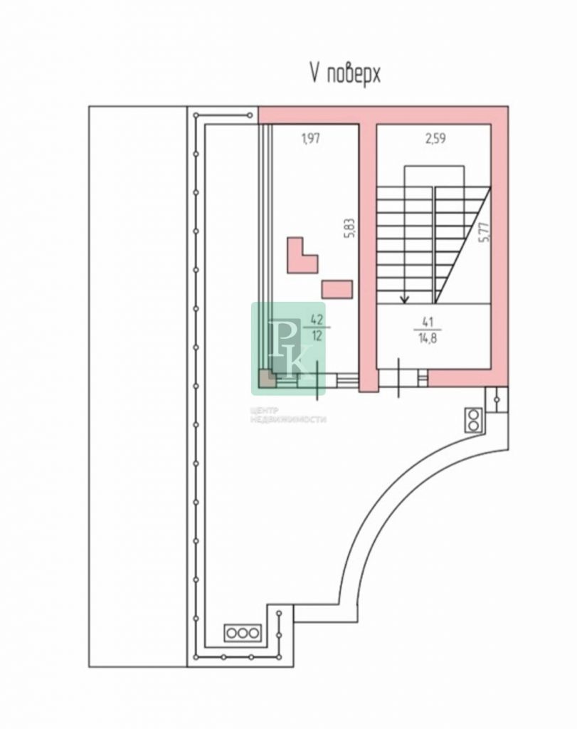
Отдельно стоящее здание 534 м2 расположено в самом центре города. Сдача здания в г. Севастополь, Ленинский район, ул. Нефедова (район Центрального рынка). В здании пять этажей + цоколь, два входа, оборудован пандус. Сделан косметический ремонт с учетом требований медицинских учреждений, проведена пожарная и охранная сигнализации, на крыше установлена автономная газовая котельная. 

Возможные виды деятельности: идеальный вариант для размещения медицинского центра либо стоматологической клиники. 

Параметры объекта:

  • Адрес: г. Севастополь, Ленинский район, ул. Нефедова
  • Площадь: 534 м²
  • Высота потолка: 2,9 м
  • Планировка: коридорно-кабинетная
  • Этажность: 5+цоколь
  • Готовность объекта: с ремонтом
  • Отдельный вход.

Технические характеристики:

  • Мощность:  25 кВт
  • Интернет: есть
  • Кондиционирование: есть
  • Вентиляция: принудительная
  • Парковка: возле помещения, вдоль дороги
  • Санузел: отдельный

Позвоните нам, чтобы узнать все детали!

Инфраструктура: 

Выгодное расположение в центральной части города обеспечивает отличную транспортную доступность и высокий рекламный потенциал. 

Позвоните нам, чтобы назначить просмотр!

Читать подробнее
alt
Федорченко Галина
Специалист ОРП
Отдел по работе с покупателями
+79155426821
Или оставьте ваш номер,
и я вам перезвоню

    alt
    Федорченко Галина
    Специалист ОРП
    Отдел по работе с покупателями
    +79155426821
    Или оставьте ваш номер,
    и я вам перезвоню

      Объект на карте
      Похожие объекты
      Блог о комфортной жизни