каталог alh компания alt ипотека избранное позвонить
Подать объявление

Уникальное предложение в Балаклаве на набережной Назукина д.13

50 000 000
242 601 2
В избранное
Подписаться
6-комнатная
1/2 эт.
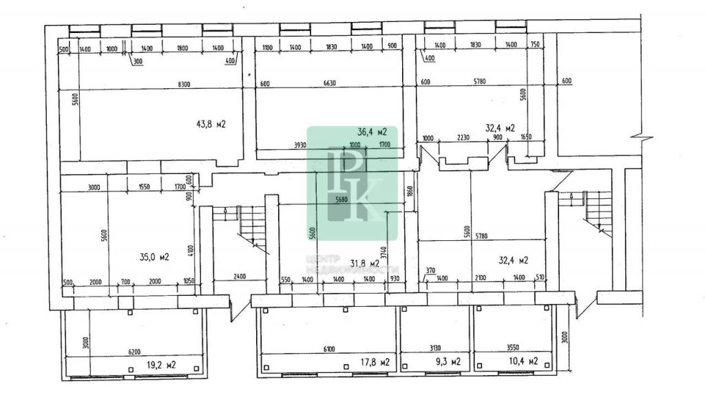
Площадь: 206.1 м2

Квартиры в Балаклаве на набережной Назукина,д.13

Уникальное предложение!!!
Продаются единым лотом три квартиры (две двухкомнатные и трехкомнатная ),общей площадью 206,1 кв.м ( по выписке из ЕГРН).

Мечтаете о прибыльном бизнесе у моря? Предлагаем уникальную возможность приобрести три квартиры единым пулом на первой линии живописной набережной Балаклавы!

Балаклава – новая точка притяжения для яхтсменов со всего мира!

Современная Яхтенная Марина мирового класса: Строительство масштабной марины превращает Балаклаву в центр яхтенного туризма в Крыму. Это привлечет состоятельных владельцев яхт и любителей морских путешествий, нуждающихся в комфортабельном жилье.
Инфраструктура высокого уровня: Марина обеспечит стоянку для сотен яхт, а также предложит широкий спектр услуг: рестораны, магазины, развлечения. Это создаст постоянный поток туристов, готовых платить за качественное проживание.
Растущий спрос на жилье: Вокруг марины будет наблюдаться взрывной рост спроса на апартаменты и гостиничные номера. Успейте занять свое место в этом перспективном бизнесе!

Расположение – Первая линия, завораживающий вид на море, прямо на набережной!
Полный демонтаж: Квартиры подготовлены к воплощению ваших дизайнерских идей. Свобода планировки!
Уникальный объект: Таких предложений в Балаклаве больше нет!

Дом является культурным наследием.

 Балаклава – город будущего!

 Ваши преимущества:

• Выгодное приобретение сразу трех квартир.
• Прекрасная локация с видом на море.
• Готовность к ремонту и реализации ваших бизнес-планов.
• Высокий потенциал для получения пассивного дохода.

Не упустите свой шанс! Звоните прямо сейчас, чтобы узнать больше и договориться о просмотре!

 

Читать подробнее
alt
Федорченко Галина
Специалист ОРП
Отдел по работе с покупателями
+79155426821
Или оставьте ваш номер,
и я вам перезвоню

    alt
    Федорченко Галина
    Специалист ОРП
    Отдел по работе с покупателями
    +79155426821
    Или оставьте ваш номер,
    и я вам перезвоню

      Объект на карте
      Похожие объекты
      Блог о комфортной жизни