каталог alh компания alt ипотека избранное позвонить
Подать объявление

Сдается в аренду отдельно стоящее 3-этажное здание 1135 м2

1 000 000
881 2
В избранное
Подписаться
Тип объекта: Офис
1/3 эт.
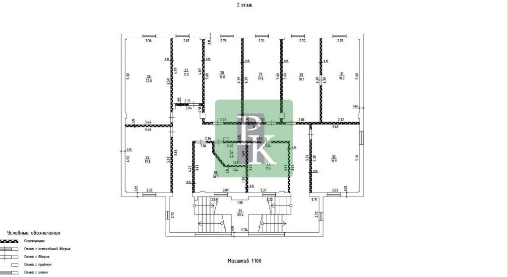
Площадь: 1135 м2

Аренда 3-этажного здания на ул.Симферопольская

Сдается в аренду отдельно стоящее  3-этажное здание 1135 м2.
Ленинский район, ул. Симферопольская,д. 2. Проведены все городские коммуникации. Во всех помещениях установлены полноценные окна, кондиционирование. Есть пожарная, охранная сигнализация, защитные роллеты. 

Возможные виды деятельности

Помещение подходит для предоставления различных офиса, ИТ-сферы,  медицинский центр, производство.


Параметры объекта:

  • Адрес: г. Севастополь, Ленинский район, Симферопольская, 2
  • Площадь: 1135 м²
  • Высота потолка: 2,7 м
  • Планировка: коридорно-кабинетная.
  • Этаж/этажность: 1/3
  • Готовность объекта: с ремонтом
  • Отдельный вход: есть

Технические характеристики:

  • Мощность: 40 кВт;
  • Вентиляция: принудительная;
  • Кондиционирование: есть;
  • Отопление: АГВ;
  • Собственная охраняемая территория (паркова, удобный заезд);
  • Санузел: на этаже;
  • Наличие пандуса.

Инфраструктура 

Район с развитой инфраструктурой и отличной транспортной доступностью. В непосредственной близости есть остановки «Инфекционная больница» (до неё можно дойти пешком за 2 минуты. Рядом магазин еда вода. До улицы Льва Толстого 3 минуты пешком.

Позвоните нам, чтобы узнать все детали!
 

Читать подробнее
alt
Салахутдинова Эльвира
Специалист ОРП
Отдел по работе с покупателями
+79785807607
Или оставьте ваш номер,
и я вам перезвоню

    alt
    Салахутдинова Эльвира
    Специалист ОРП
    Отдел по работе с покупателями
    +79785807607
    Или оставьте ваш номер,
    и я вам перезвоню

      Объект на карте
      Похожие объекты
      Блог о комфортной жизни