каталог alh компания alt ипотека избранное позвонить
Подать объявление

Продажа коммерческого помещения на ул. Фадеева

23 000 000
134 033 2
В избранное
Подписаться
Тип объекта: Торговая площадь
0/11 эт.
Площадь: 171.6 м2

Продажа коммерческого помещения на ул. Фадеева, Гагаринский район, г. Севастополь. Отличная локация, презентабельный вход с панорамным остеклением, транспортная доступность. 

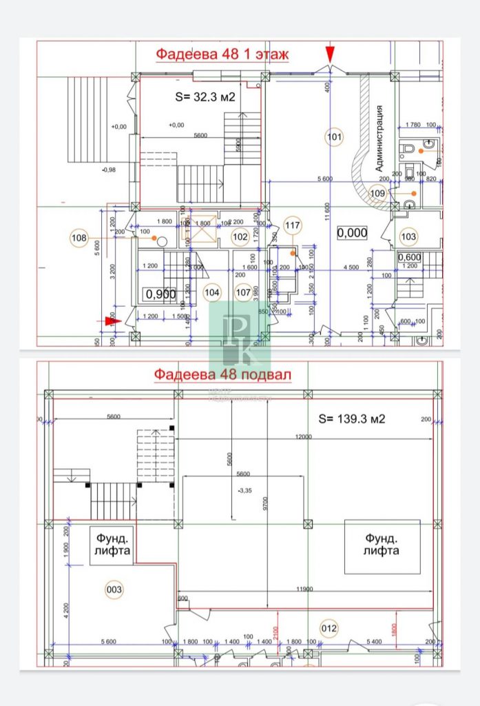
Помещение общей площадью 171,6 м² расположено в доме по адресу Адмирала Фадеева 48, в непосредственной близости от парка Победы и магазина Меркурий. 

Объект состоит из помещения первого этажа площадью 32,3 м². Сдано в аренду сетевой кофейне. И подвального помещения площадью 139,3 м². Состояние черновое, что позволит осуществить любой проект. Два входа в подвальную часть помещения:  с первого этажа и через общий коридор. 

Возможные виды деятельности: отличный вариант под общепит, сферу услуг. Является выгодной инвестицией.

Инвестиционная привлекательность и инфраструктура: 

Район плотной жилой застройки Гагаринского района. Остановка общественного транспорта и площадка для парковки обеспечивают легкую транспортную доступность и возможность разгрузки товара.  

Соседи: магазин Еда Вода, магазин вкусных продуктов Меркурий, кинотеатр, несколько заведений общепита. 

Позвоните нам, чтобы узнать все детали!

 

Параметры объекта:

  • Адрес: г. Севастополь, Гагаринский район, ул. Адмирала Фадеева
  • Площадь: 171.6 м²
  • Высота потолка: 3 м
  • Планировка: Openspace
  • Этаж/этажность: 2 этажа
  • Готовность объекта: без ремонта
  • Отдельный вход: есть

Технические характеристики:

  • Мощность: 25 кВт, 380V
  • Вентиляция: естественная
  • Кондиционирование: есть
  • Санузел: отдельный
  • Парковка: напротив здания

Позвоните нам, чтобы назначить просмотр!

Читать подробнее
alt
Федорченко Галина
Специалист ОРП
Отдел по работе с покупателями
+79155426821
Или оставьте ваш номер,
и я вам перезвоню

    alt
    Федорченко Галина
    Специалист ОРП
    Отдел по работе с покупателями
    +79155426821
    Или оставьте ваш номер,
    и я вам перезвоню

      Объект на карте
      Похожие объекты
      Блог о комфортной жизни