каталог alh компания alt ипотека избранное позвонить
Подать объявление

Продам офис с ремонтом в БЦ КУБ

8 400 000
230 769 2
В избранное
Подписаться
Тип объекта: Офис
3/4 эт.
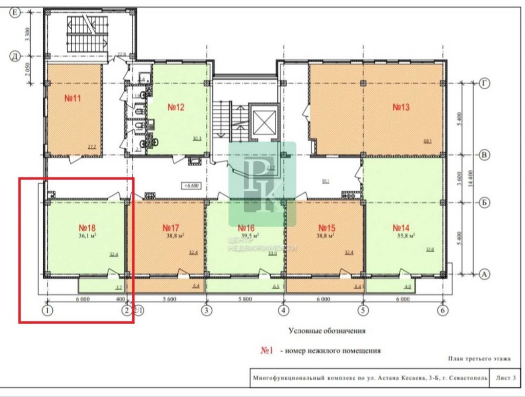
Площадь: 36.4 м2

Офис 36,4 м² в новом бизнес-центре КУБ расположен на третьем этаже. 

 г. Севастополь, Гагаринский район, на первой линии ул. Астана Кесаева. 

Помещение полностью готово к работе: с качественным ремонтом, просторное и светлое, правильной прямоугольной формы, с полноценным окном и собственным балконом! Установлен мощный кондиционер зима-лето, принудительная вентиляция.

Дополнительная информация: 

Здание обладает заметной входной группой. Собственная парковка на 14 парко мест, благоустроенная территория с озеленением. Установлен бесшумный лифт. Зона отдыха у входа.

На этаже два санузла и душевая кабина. 

Здание имеет интересное архитектурное решение – балконы спрятаны за декоративной фасадной системой с перфорированными панелями, которые не препятствуют проникновению воздуха, но выполняют солнцезащитную функцию.

Возможные виды деятельности: подойдет для презентабельного офиса, оказания услуг населению, класса обучения, кабинета психолога или выгодной инвестиции.

Параметры объекта:

  • Адрес: г. Севастополь, Гагаринский район, ул. Астана Кесаева
  • Площадь: 36,4 м²
  • Высота потолка: 2,8 м
  • Планировка: Openspace
  • Этаж/этажность: 3/4
  • Готовность объекта: с ремонтом
  • Отдельный вход: нет

Технические характеристики:

  • Мощность: 5 кВт
  • Вентиляция: принудительная
  • Кондиционирование: есть
  • Санузел: на этаже
  • Парковка: на улице, рядом с помещением

Позвоните нам, чтобы узнать все детали!

Инфраструктура: 

Современный бизнес-центр расположен на первой линии в районе с развитой инфраструктурой. Собственная парковка. Благоустроенная территория с озеленением.  Ближайшая остановка общественного транспорта: Проезд Колобова. 

Позвоните нам, чтобы назначить просмотр!

Читать подробнее
alt
Салахутдинова Эльвира
Специалист ОРП
Отдел по работе с покупателями
+79785807607
Или оставьте ваш номер,
и я вам перезвоню

    alt
    Салахутдинова Эльвира
    Специалист ОРП
    Отдел по работе с покупателями
    +79785807607
    Или оставьте ваш номер,
    и я вам перезвоню

      Объект на карте
      Похожие объекты
      Блог о комфортной жизни