каталог alh компания alt ипотека избранное позвонить
Подать объявление

Помещение свободного назначения

23 000 000
255 556 2
В избранное
Подписаться
Тип объекта: Торговая площадь
1/4 эт.
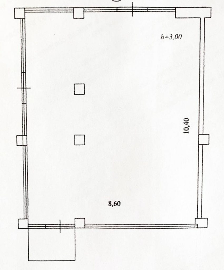
Площадь: 90 м2

Помещение свободного назначения 90 м2, расположено на первом этаже четырехэтажного ТЦ «Плаза» с отдельным входом с улицы! Продажа помещения в г. Севастополь, Ленинский район, улица Очаковцев. 

Параметры объекта:

  • Адрес: г. Севастополь, Ленинский район, улица Очаковцев
  • Площадь: 90 м²
  • Высота потолка: 3 м
  • Планировка: зальная
  • Этаж/этажность: 1/4
  • Готовность объекта: с ремонтом
  • Отдельный вход

Технические характеристики:

  • Мощность: 10 кВт
  • Электричество: 220V
  • Интернет: есть
  • Кондиционирование: есть
  • Вентиляция: естественная
  • Санузел: отдельный
  • Парковка: возле помещения, вдоль дороги

Большой торговый зал, разделенный на две зоны. Есть отдельный вход с улицы и два входа с внутренней части торгового центра. Отдельный санузел, заведены коммуникации

  • Помещение с арендатором.

Инвестиционная привлекательность: 

  • презентабельное помещение в центре города
  • возле входа в помещение сосредоточен активный автомобильный и пешеходный трафик
  • есть возможность сделать большую видимую рекламу на фасаде

Возможные виды деятельности: помещение отлично подойдет как под собственную торговую деятельность, так и в качестве инвестиции.

Без комиссии для покупателя.

Документы проверены юристами и готовы к сделке. 

Добавьте предложение в закладки, чтобы не потерять!

Читать подробнее
alt
Анна Линникова
Специалист ОРП
Отдел по работе с покупателями
+79786899214
Или оставьте ваш номер,
и я вам перезвоню

    alt
    Анна Линникова
    Специалист ОРП
    Отдел по работе с покупателями
    +79786899214
    Или оставьте ваш номер,
    и я вам перезвоню

      Объект на карте
      Похожие объекты
      Блог о комфортной жизни