каталог alh компания alt ипотека избранное позвонить
Подать объявление

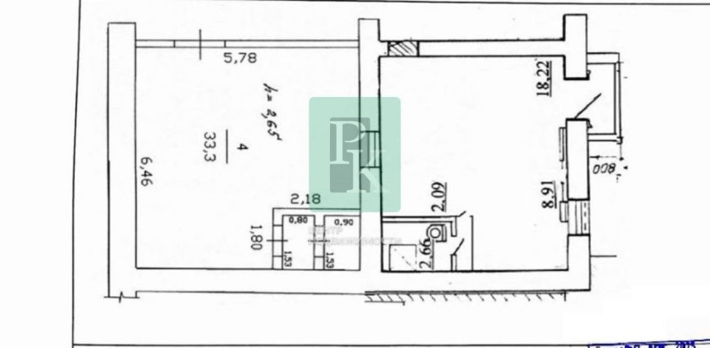
Помещение 70 м² с отдельным входом в центре

60 000
857 2
В избранное
Подписаться
Тип объекта: Торговая площадь
1/3 эт.
Площадь: 70 м2

Помещение 70 м² с отдельным входом в центре расположено на первом этаже жилого дома, состоит из двух залов площадью 30 м² и 40 м². Сдается помещение в центре в г. Севастополь, Ленинский район, Большая Морская.

В помещении установлен кондиционер. Высокие потолки. Имеется собственный санузел. Есть возможность вывода воды и канализации во второй зал. Мощность: 15 кВт. Установлена пожарная и охранная сигнализация, защитные роллеты. 

Предоставляются арендные каникулы.

Без комиссии для арендаторов!

Возможные виды деятельности: идеально подойдет под салон красоты, сферу услуг, обучение, офис, торговлю или ателье.

Параметры объекта:

  • Адрес: г. Севастополь, Ленинский район, улица Б. Морская
  • Площадь: 70 м²
  • Высота потолка: 3 м
  • Планировка: зальная
  • Этажность: 1/3
  • Готовность объекта: с ремонтом
  • Отдельный вход: есть

Технические характеристики:

  • Мощность: 15 кВт
  • Вентиляция: естественная
  • Кондиционирование: есть
  • Отопление: центральное
  • Санузел: отдельный

Позвоните нам, чтобы узнать все детали!

Инфраструктура:

Помещение расположено в историческом центре города. Высокий пешеходный и автомобильный трафик. Удобная логистика.

Позвоните нам, чтобы назначить просмотр!

Читать подробнее
alt
Федорченко Галина
Специалист ОРП
Отдел по работе с покупателями
+79155426821
Или оставьте ваш номер,
и я вам перезвоню

    alt
    Федорченко Галина
    Специалист ОРП
    Отдел по работе с покупателями
    +79155426821
    Или оставьте ваш номер,
    и я вам перезвоню

      Объект на карте
      Похожие объекты
      Блог о комфортной жизни