каталог alh компания alt ипотека избранное позвонить
Подать объявление

Помещение 43 м² под офис / сферу услуг с отдельным входом

30 000
698 2
В избранное
Подписаться
Тип объекта: Офис
0/5 эт.
Площадь: 43 м2

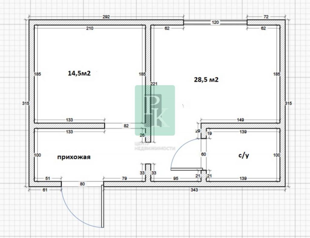
Помещение 43 м² свободного назначения с отдельным входом расположено на цокольном этаже пятиэтажного жилого дома. Сдается помещение в г. Севастополь, Нахимовский район, ул. Челюскинцев. Объект состоит из 2х комнат, есть отдельный с/у и душевая. Выполнен косметический ремонт, в одном из кабинетов есть окно.

Без комиссии для арендаторов!

Возможные виды деятельности: отлично подойдет под офисную деятельность или для оказания услуг населению. 

Параметры объекта:

  • Адрес: г. Севастополь, Нахимовский район, улица Челюскинцев
  • Площадь: 43 м²
  • Высота потолка: 2,7 м
  • Планировка: коридорно-кабинетная
  • Этаж/этажность: цоколь/5
  • Готовность объекта: с ремонтом
  • Отдельный вход: есть

Технические характеристики:

  • Мощность: 3 кВт
  • Интернет: есть
  • Вентиляция: естественная
  • Отопление: нет
  • Санузел: отдельный
  • Парковка: возле помещения, вдоль дороги

Позвоните нам, чтобы узнать все детали!

Инфраструктура: 

Динамично развивающийся район города, развитая инфраструктура. Помещение находится в шаговой доступности от Учкуевского парка.

Позвоните нам, чтобы назначить просмотр!

Читать подробнее
alt
Салахутдинова Эльвира
Специалист ОРП
Отдел по работе с покупателями
+79785807607
Или оставьте ваш номер,
и я вам перезвоню

    alt
    Салахутдинова Эльвира
    Специалист ОРП
    Отдел по работе с покупателями
    +79785807607
    Или оставьте ваш номер,
    и я вам перезвоню

      Объект на карте
      Похожие объекты
      Блог о комфортной жизни