каталог alh компания alt ипотека избранное позвонить
Подать объявление

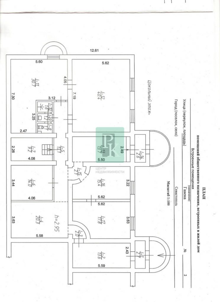
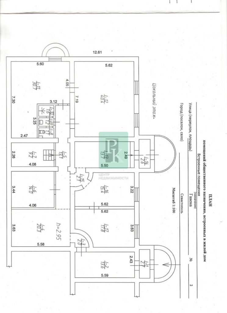
Офис 8ми кабинетный с мебелью район ЦУМа

175 000
868 2
В избранное
Подписаться
Тип объекта: Офис
1/5 эт.
Площадь: 201.5 м2

Офис 8ми кабинетный с мебелью на ЦУМе на первом этаже пятиэтажного жилого дома, по улице Гавена, 2.

 

Сдается БЕЗ КОМИССИИ для арендатора.

Звоните, отвечу на все вопросы и организую показ помещения.

 

Возможные виды деятельности

Подходит под офис компании, колл-центр, IT – компанию, образовательное учреждение, медицинскую деятельность.

 

Дополнительная информация 

В помещении установлены кондиционеры, охранная и пожарная сигнализации, имеется кабинет руководителя,собственная кухня, душевая, три санузла,серверная и подсобные помещения. Сделан качественный ремонт, мебель остается по договоренности. 

Параметры объекта:

  • Адрес: г. Севастополь, Гагаринский район, улица Гавена, 2
  • Площадь: 201,5 м²
  • Высота потолка: 3 м
  • Планировка: кабинетная
  • Этаж/этажность: 1/5
  • Готовность объекта: с ремонтом и мебелью
  • Отдельный вход: да
  • Ступеньки: нет

 

Технические характеристики:

  • Мощность: 20кВт
  • Электричество: 380V
  • Интернет: есть
  • Вентиляция: естественная
  • Отопление: центральное
  • Санузел: отдельный
  • Парковка: собственная

 

Инфраструктура 

Рядом с домом имеется вместительная парковка, школа Олимпийского резерва и в непосредственной близости детского центра “Корсунь” и музейного комплекса “Новый Херсонес”.

 

Звоните, чтобы узнать все детали!

Читать подробнее
alt
Салахутдинова Эльвира
Специалист ОРП
Отдел по работе с покупателями
+79785807607
Или оставьте ваш номер,
и я вам перезвоню

    alt
    Салахутдинова Эльвира
    Специалист ОРП
    Отдел по работе с покупателями
    +79785807607
    Или оставьте ваш номер,
    и я вам перезвоню

      Объект на карте
      Похожие объекты
      Блог о комфортной жизни