каталог alh компания alt ипотека избранное позвонить
Подать объявление

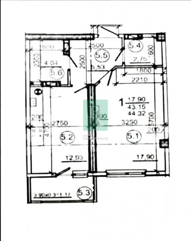
Однокомнатная квартира 45,4 м2, 4/8 эт. дома с просторной кухней 13 м2.

12 700 000
279 736 2
В избранное
Подписаться
1-комнатная
4/8 эт.
Площадь: 45.4 м2

Однокомнатная квартира 45,4 м2, 4/8 эт. дома с просторной кухней 13 м2. Расположена в г. Севастополь, Гагаринский район, пр-кт Античный, д. 5.

Позвоните нам, чтобы узнать все детали!

Технические характеристики:

  • Адрес: г. Севастополь, Гагаринский район, пр-кт Античный, д. 5
  • Год постройки дома: 2022
  • Этаж/этажность: 4/8
  • Количество комнат: 1
  • Комнаты: изолированные
  • Общая площадь: 45,4 м2
  • Жилая площадь: 17.9 м2
  • Площадь кухни: 12,93 м2
  • Высота потолка: 2,8 м
  • Санузел: совмещенный 4 м2
  • Водоснабжение: центральное
  • Горячее водоснабжение: АГВ
  • Отопление: АГВ

Дополнительная информация:

Общая площадь 45,4 м2. Это лучшая планировка однокомнатной квартиры в данном ЖК, квартира имеет большую кухню 12,9 м2, гардеробная 2,75 м2.  Санузел совмещенный 4 м2, высота потолков 2.8 м. В квартире выполнен качественный дорогостоящий ремонт. Квартира тихая. 
 

В квартире выполнены начальная разводка электросети с установкой счетчика и распределительной коробки с автоматами защиты, разводка системы водоснабжения и канализации, установлены увеличенные радиаторы системы отопления, двойные стеклопакеты, качественная входная дверь. Индивидуальное отопление и горячее водоснабжение обеспечивается двухконтурным газовым котлом.

Здание оборудовано пассажирским лифтом грузоподъемностью 1000 кг.

«Легенда» – это современный жилой комплекс, расположенный на берегу бухты Омега в Гагаринском районе Севастополя.

В составе комплекса: 8 жилых корпусов класса Соmfоrt+, парковое благоустройство территории вокруг комплекса и авторский ландшафтный дизайн внутреннего пространства. Чтобы освободить двор от машин, прямо под ним организован двухуровневый подземный паркинг на 250 автомобилей.

Дом вводится в эксплуатацию, сейчас заканчиваются работы по благоустройству территории.

Позвоните нам, чтобы назначить просмотр!

Инфраструктура:

Рядом с домом есть вся необходимая социально развитая инфраструктура: детский садик №123, новый образовательный центр. До моря и обустроенных пляжей 10 минут спокойным шагом. 200 метров до моря, район с развитой инфраструктурой. 

Только наличный расчет. 

Документы РФ проверены юристами и готовы к сделке. 

Профессиональное сопровождение до получения права собственности.

Добавьте предложение в закладки, чтобы не потерять!

Возможно произошел сбой и вы не смогли дозвониться. Напишите ваш номер мы свяжемся с вами ближайшее время или попробуйте позвонить еще раз.

Читать подробнее
alt
Федорченко Галина
Специалист ОРП
Отдел по работе с покупателями
+79155426821
Или оставьте ваш номер,
и я вам перезвоню

    alt
    Федорченко Галина
    Специалист ОРП
    Отдел по работе с покупателями
    +79155426821
    Или оставьте ваш номер,
    и я вам перезвоню

      Объект на карте
      Похожие объекты
      Блог о комфортной жизни