каталог alh компания alt ипотека избранное позвонить
Подать объявление

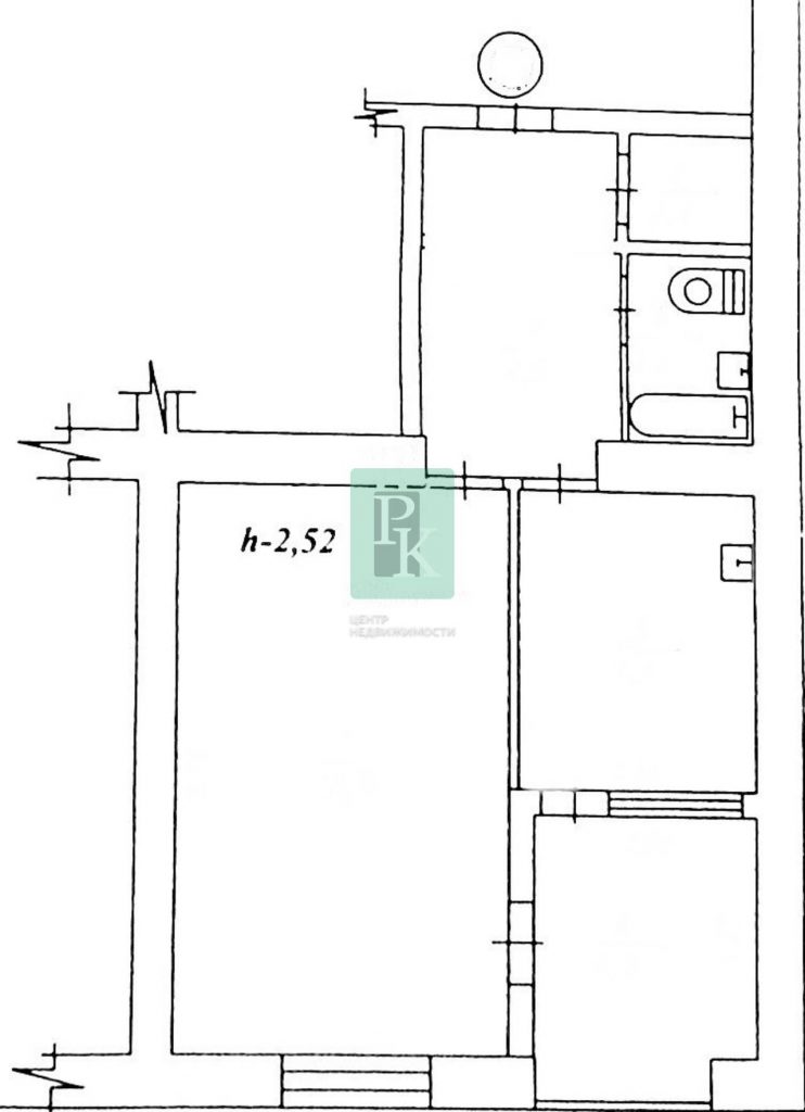
Однокомнатная квартира 39,6 м2, на 5/5 этаже дома Горпищенко, д. 94.

6 600 000
166 667 2
В избранное
Подписаться
1-комнатная
5/5 эт.
Площадь: 39.6 м2

Однокомнатная квартира 39,6 м2, на 5 этаже 5 этажного дома. Расположена в г. Севастополь, Нахимовский райн,  улице Горпищенко, д. 94.

Данный объект подойдет как для собственного проживания, так и в качестве высокорентабельной инвестиции. 

Технические характеристики:

  • Адрес: г. Севастополь,  Нахимовский район, улице Горпищенко, д. 94.
  • Год постройки дома: 1986
  • Этаж/этажность: 5/5
  • Количество комнат: 1
  • Комнаты: изолированные
  • Общая площадь: 39,6 м2
  • Жилая площадь: 19,6  м2
  • Комната: 19,6 м2
  • Площадь кухни: 8 м2
  • Высота потолка: 2.5 м
  • Санузел: совмещенный
  • Водоснабжение: центральное
  • Горячее водоснабжение: бойлер
  • Отопление: центральное

Дополнительная информация:

Квартира продается полностью укомплектованная мебелью и техникой! Готова и для жизни и сразу для сдачи в аренду.


Квартира утеплена со всех сторон! 

В Квартире выполнен качественный ремонт. Бонусом остается вся техника и мебель что на фото. В комнате установлен кондиционер. В Ванной вместительный бойлер. На полу уложен кафель в коридоре кухне и ванной,  а в комнате и на лоджии уложен ламинат. 

Расположение квартиры позволяет использовать коридор. как дополнительную полезную площадь. 

Позвоните нам, чтобы назначить просмотр!

Инфраструктура:

Развитый район Севастополя, отличная транспортная развязка, до остановки 5 минут пешком, из которой можно без пересадок добраться в любую точку города. Рядом удобная транспортная развязка и выезд из города.

Подходит для наличного расчета, под  ипотеку, материнский капитал, жилищные сертификаты. 

Документы РФ проверены юристами и готовы к сделке. 

Профессиональное сопровождение до получения права собственности.

Добавьте предложение в закладки, чтобы не потерять!

Для просмотра и получения дополнительной информации – звоните!

Читать подробнее
alt
Салахутдинова Эльвира
Специалист ОРП
Отдел по работе с покупателями
+79785807607
Или оставьте ваш номер,
и я вам перезвоню

    alt
    Салахутдинова Эльвира
    Специалист ОРП
    Отдел по работе с покупателями
    +79785807607
    Или оставьте ваш номер,
    и я вам перезвоню

      Объект на карте
      Похожие объекты
      Блог о комфортной жизни