каталог alh компания alt ипотека избранное позвонить
Подать объявление

Однокомнатная квартира 30,5 м2, 5/5 этаж, по ул. Комбрига Потапова, 16

7 000 000
229 508 2
В избранное
Подписаться
1-комнатная
5/5 эт.
Площадь: 30.5 м2

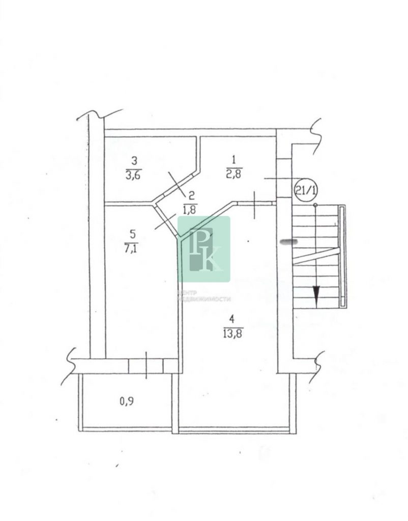
Однокомнатная квартира 30.5  м2, на 5/5 этаже дома, с кухней 7,4 м2 Расположена в г. Севастополь, Гагаринский район, ул. Комбрига Потапова, д. 16.

 Данный объект подойдет как для собственного проживания, так и в качестве высокорентабельной инвестиции.

Позвоните нам, чтобы узнать все детали!

Технические характеристики:

  • Адрес: г. Севастополь, Гагаринский район, ул. Комбрига Потапова, д. 16
  • Год постройки дома: 2013
  • Этаж/этажность: 5/5
  • Количество комнат: 1
  • Комнаты: смежные
  • Общая площадь: 30.5 м2
  • Жилая площадь: 13, 8 м2
  • Площадь кухни: 7,4м2
  • Высота потолка: 2,9 м
  • Санузел: совмещенный
  • Водоснабжение: центральное
  • Горячее водоснабжение: АГВ
  • Отопление: АГВ

Дополнительная информация:

В квартире выполнен качественный ремонт, мебель и техника обсуждается при продаже.

Квартира находится в новом доме построенного из натурального природного камня-ракушки. 

Установлено АГВ, кондиционер.

Планировка квартиры: просторная кухня 7,1 м2, с выходом на балкон .  Жилая комната 13,8 м2. Санузел 3 м2.

Позвоните нам, чтобы назначить просмотр!

Инфраструктура:

Развитый Гагаринский район города Севастополь. Всё необходимое для комфортного проживания есть в пешей доступности. Новая школа и детский сад “ЭКОтех+”, детский сад “Акварель”, строящийся спортивный комплекс.  Аптеки и поликлиники. Магазины и супермаркеты. Остановка общественного транспорта рядом с домом.

 Подходит для наличного расчета, под ипотеку, материнский капитал, жилищные сертификаты. 

Документы РФ проверены юристами и готовы к сделке. 

Профессиональное сопровождение до получения права собственности.

Добавьте предложение в закладки, чтобы не потерять!

Для просмотра и получения дополнительной информации – звоните!

Читать подробнее
alt
Салахутдинова Эльвира
Специалист ОРП
Отдел по работе с покупателями
+79785807607
Или оставьте ваш номер,
и я вам перезвоню

    alt
    Салахутдинова Эльвира
    Специалист ОРП
    Отдел по работе с покупателями
    +79785807607
    Или оставьте ваш номер,
    и я вам перезвоню

      Объект на карте
      Похожие объекты
      Блог о комфортной жизни