каталог alh компания alt ипотека избранное позвонить
Подать объявление

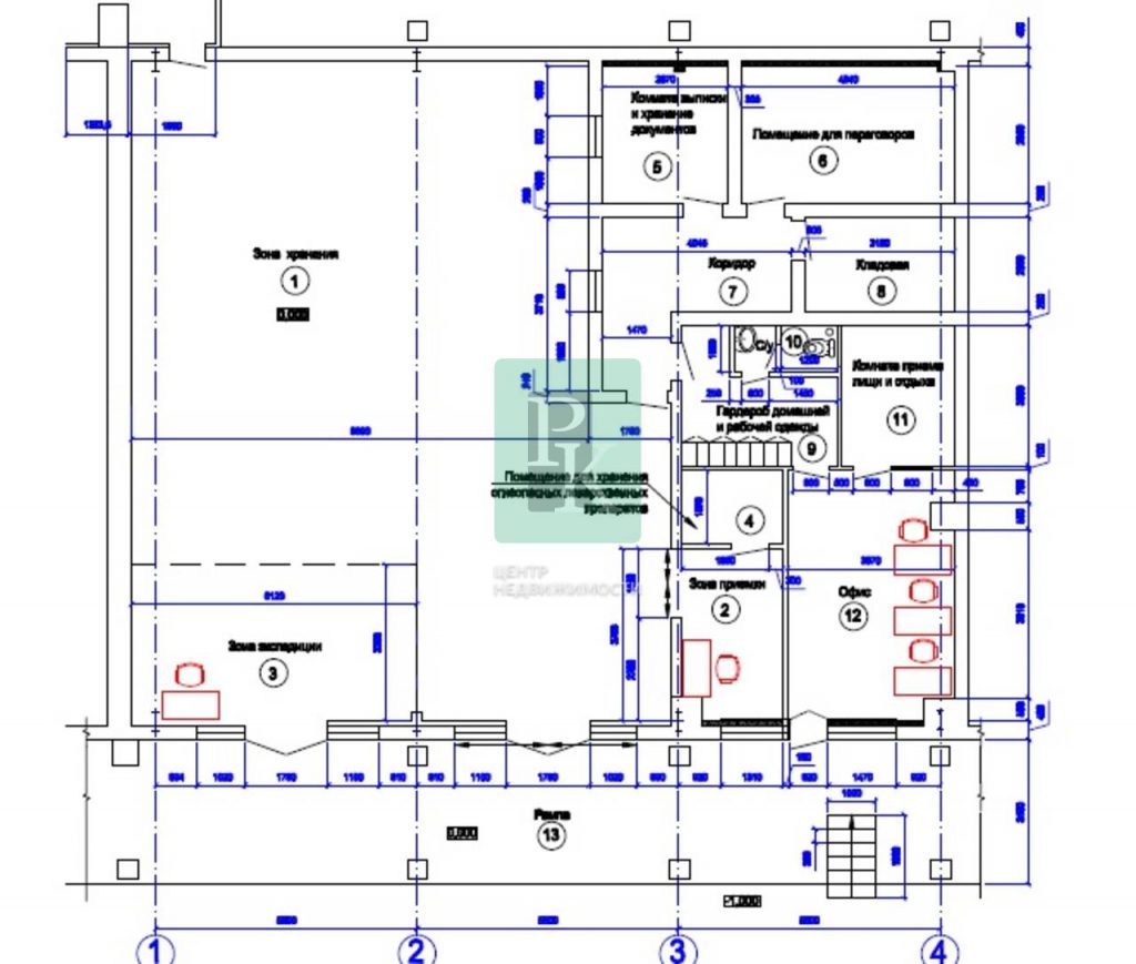
Фарм склад с лицензией и ответ хранением

100 000
399 2
В избранное
Подписаться
Тип объекта: Торговая площадь
1/1 эт.
Площадь: 250.8 м2

Фармацевтический склад с лицензией. Принимаем на ответ хранение медицинские препараты, мебель, медицинское оборудование, детское питание, препараты для диализного центра и другую продукцию требующую медицинского лицензирования.

Сдается БЕЗ КОМИССИИ для арендатора!

Звоните, чтобы узнать все детали!

 

Помещение состоит из офисной, складской и холодильной части, имеет свою рампу, пожарную и охранную сигнализации.

Офисная часть: кабинеты для сотрудников, отдельная комната выписки и хранения документов, кладовая.

Складская часть состоит из:

  • Зоны хранения, зоны приемки и зоны экспедиции 160 м² с рампой для разгрузки и тремя независимыми входами. Во всех помещениях поддерживается температура от + 15 до +25 градусов.
  • Помещение для хранения огнеопасных препаратов.
  • Две холодильные камеры для хранения вакцины. Объем каждой камеры 36 м3. Температурный режим – 5-10 градусов.

Складские помещения оборудованы аккумулятором, обеспечивающим 4х часовую работу склада в случае отключения электричества, так же имеется дизельный генератор для дальнейшей поддержки работы склада. 

Технологический запас мощности до 100 кВт.

Помещения оборудованы охранной и пожарной сигнализациями, принудительной вытяжкой, кондиционерами. Важно: высокоскоростной интернет.

Имеется собственный санузел.

 

Возможные виды деятельности: Ответ хранение – Фармацевтический склад с лицензией. 

 

Параметры объекта:

  • Адрес: г. Севастополь, Ленинский район, улица Соловьева
  • Площадь: 343,6 м²
  • Высота потолка: 3 м
  • Планировка: зальная
  • Этаж/этажность: 1/1
  • Готовность объекта: с ремонтом
  • Отдельный вход: да

 

Технические характеристики:

  • Мощность: 15 кВт
  • Кондиционирование: есть
  • Вентиляция: принудительная
  • Отопление: автономное
  • Санузел: отдельный
  • Парковка: на улице

Позвоните нам, чтобы узнать все детали!

 

Инфраструктура: 

Помещение расположено в центре города, в районе с развитой инфраструктурой. Отличная транспортная доступность позволяет осуществлять доставку груза во все точки города. 

Имеется место для размещения наружной рекламы на территории. Парковка для автомобилей рядом со зданием.

Позвоните нам, чтобы назначить просмотр!

Читать подробнее
alt
Комлева Анастасия
Специалист ОРП
Отдел по работе с покупателями
+79802431274
Или оставьте ваш номер,
и я вам перезвоню

    alt
    Комлева Анастасия
    Специалист ОРП
    Отдел по работе с покупателями
    +79802431274
    Или оставьте ваш номер,
    и я вам перезвоню

      Объект на карте
      Похожие объекты
      Блог о комфортной жизни