каталог alh компания alt ипотека избранное позвонить
Подать объявление

Дом 90 метров на Фиоленте

8 500 000
106 250 2
В избранное
Подписаться
Кол-во этажей: 1
Участок:  4.2 сот
Площадь: 80 м2

Дом 90 м² на участке 4,5 соток, одноэтажный. Расположен в г. Севастополь, Гагаринский район, СНТ “Наука”. Коммуникации: электричество, водоснабжение, отопление, канализация, интернет и всего в 600 метрах от Фиолентовского шоссе.

 

Технические характеристики:

 

Одноэтажный дом, 2025 года постройки

Площадь: 90 м²

Высота потолка: 2,9 м

Ремонт: пред чистовая отделка

Отопление: все выполнено под установку газового или электрического котла

Электричество: 15 кВт

Водоснабжение: кооперативное

Канализация: септик

 

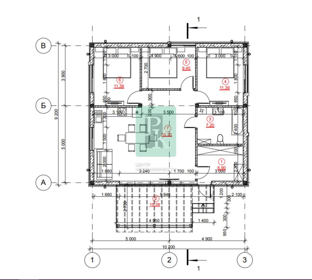
Планировка дома: 

 

Всего 1 этаж, 3 комнаты, кухня-гостиная, санузел, котельная

 

Планировка участка:

 

Участок 4,5 соток, статус участка СТ

Территория огорожена

Установлены откатные ворота

Подъезд грунтовая дорога

 

Дом общей площадью 90 м². Дом состоит из трёх комнат, ванной комнаты, котельной. Кухня-столовая с выходом на видовую террасу.

 

Дом стоит на фундаменте, построен из газобетона, использовались только качественные и современные материалы. 

В настоящее время дом находится в стадии строительства, что позволит Вам в реальном времени посмотреть на качество строительства и возможность наблюдать за выполнением всех этапов строительства. 

 

 

 

Инфраструктура:

 

Дом находится на мысе Фиолент, в развитом и комфортном для жизни районе.

 

В шаговой доступности автобусная остановка с несколькими маршрутами.

 

Рядом продуктовые магазины, галечные пляжи, смотровые площадки, детский бассейн, церковь, парки и поликлиника.  

 

Подходит для наличного расчета, под ипотеку, семейная ипотека. Есть большой выбор домов в разных локациях и на любой бюджет от хорошего застройщика. Звоните и я помогу найти для Вас лучший вариант по самой выгодной цене.

 

Документы РФ. Проверены юристами и готовы к сделке.

 

Профессиональное сопровождение до получения права собственности.

Читать подробнее
alt
Юридическая проверка

alt
Федорченко Галина
Специалист ОРП
Отдел по работе с покупателями
+79155426821
Или оставьте ваш номер,
и я вам перезвоню

    alt
    Федорченко Галина
    Специалист ОРП
    Отдел по работе с покупателями
    +79155426821
    Или оставьте ваш номер,
    и я вам перезвоню

      Объект на карте
      Похожие объекты
      Блог о комфортной жизни