каталог alh компания alt ипотека избранное позвонить
Подать объявление

Гостевой дом с номерами 400 м2 на участке в Любимовке

18 000 000
45 000 2
В избранное
Подписаться
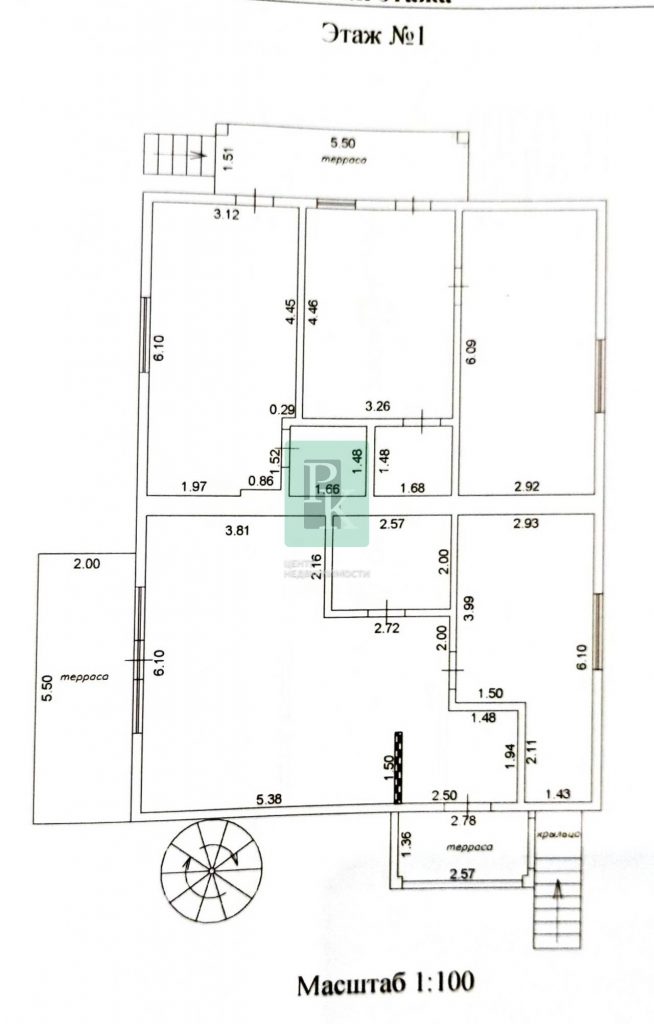
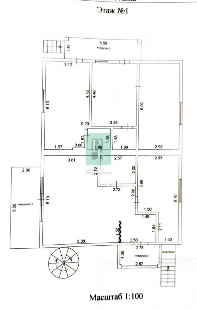
Кол-во этажей: 3
Участок:  5 сот
Площадь: 400 м2

Гостевой дом с номерами 400 м2 на участке в Любимовке

В продаже хороший большой гостевой дом в отличной локации возле благоустроенных пляжей в пос. Любимовка.

 

Дом построен из пеногазобетонных блоков и утеплен с фасада здания по периметру.

Он имеет два этажа и цоколь.

Общая площадь здания 400 м2. Все помещения имеют отдельные входы.

Участок огорожен бетонным забором.

Придомовая территория облагорожена отмосткой и декоративными растениями.

 

На участке растут плодовые деревья, виноград, цветы и полезные растения.

Площадь участка почти 5 соток, он расположен на первой линии возле дороги, есть места для автомобилей отдыхающих.

К участку ведет асфальтированная дорога.

Участок находится на закрытой территории, ворота на въезде на пульт-управлении.

За воротами также асфальтированный проезд, где достаточно парковочных мест.

 

Дом с участком находятся возле дороги, по которой проходят несколько маршрутов общественного транспорта, рядом есть две остановки.

 

В 10 метрах от забора находится газовый узел, в ближайшее время планируется завести газ на участки.

На участке есть свой газгольдер на 800 литров.

В доме установлены водяные теплые полы.

На цокольном этаже есть два помещения, каждое площадью более 54 м2.

 

Можно оборудовать там жилые помещения, а также котельную, постирочную и другие технические помещения.

 

В одном установлен двухконтурный газовый котел, что обеспечивает бесперебойную подачу тепла и горячей воды в дом. Также это позволяет существенно экономить на коммунальных платежах и платить только за потребляемые ресурсы.

 

Электричество есть.

На территории кооператива установлены электрические столбы.

На участке своя скважина для обеспечения водой.

 

На первом этаже с одной стороны дома есть большие двухкомнатные апартаменты с ремонтом и мебель, и с просторной верандой площадью 11 м2, откуда открывается прекрасный вид на горы и красочный осенний лес.

Здесь за чашкой кофе Вы можете наслаждаться чудесным видом и красивейшими закатами.

Кроме веранды апартаменты имеют закрытую террасу на входе, прихожую, кухню-гостинную, спальню с гардеробной и санузел.

 

С этой же стороны здания на второй этаж ведет винтовая лестница, где расположены два гостевых номера с общим балконом площадью 6 м2. Один номер – двухкомнатный ок. 35 м2 и однокомнатный 21,3 м2.

На сегодня эти номера без отделки, выполнена стяжка пола, разводка водопроводных труб.

 

Все номера оснащены собственными санузлами.

 

С другой стороны дома расположены еще 4 номера: 2 на первом этаже, два на втором, которые также объединены общими балконами.

Здесь все номера с ремонтом и мебелью.

На втором этаже благоустроены 2 однокомнатных номера по 29 м2 каждый. 

На первом этаже также два благоустроенных мебелью номера: один двухкомнатный площадью 35 м2 и однокомнатный – 21,5 м2. 

 

Коммуникации:

электричество 15 кВт.
вода: своя скважина.
газ: проходит рядом с участком.


Инфраструктура в этой локации давно и хорошо развита: рядом магазины, рынок, школа, детсад, кафе и др.

 

Также близко находится большой новый развлекательный парк Учкуевка с выходом с большому песчаному пляжу, очень популярному у севастопольцев и гостей города.

До центра города 40 минут на машине.

В пяти минутах езды находятся одни из лучших пляжей Севастополя с открытым морем, чистой водой и благоустроенной территорией.
Вы можете выбрать пляж на свой вкус: рядом и песчаный, и галечный.

Один собственник, документы РФ проверены юристом.
Рассмотрим наличный расчет и ипотеку.

Профессиональное сопровождение сделки гарантировано.

Читать подробнее
alt
Юридическая проверка

alt
Федорченко Галина
Специалист ОРП
Отдел по работе с покупателями
+79155426821
Или оставьте ваш номер,
и я вам перезвоню

    alt
    Федорченко Галина
    Специалист ОРП
    Отдел по работе с покупателями
    +79155426821
    Или оставьте ваш номер,
    и я вам перезвоню

      Объект на карте
      Похожие объекты
      Блог о комфортной жизни