каталог alh компания alt ипотека избранное позвонить
Подать объявление

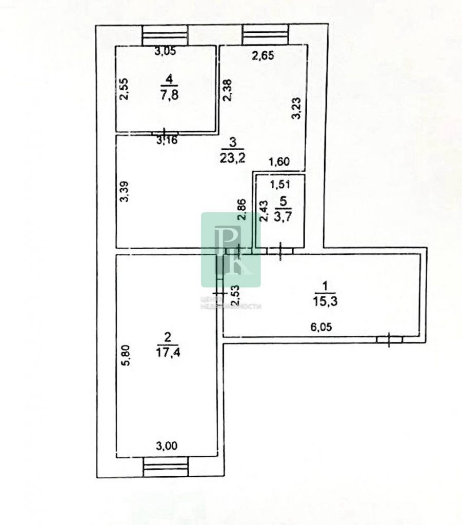
Трехкомнатная квартира с АГВ 67,7 м2, 2/3 эт. ул. Большая Морская д. 26

23 500 000
348 665 2
В избранное
Подписаться
3-комнатная
2/3 эт.
Площадь: 67.4 м2

Трехкомнатная квартира с АГВ 67,7 м2, 2/3 эт. ул. Большая Морская д. 26

Трехкомнатная квартира 67,7 м2 на 2/3 этаже дома. Расположена в г. Севастополь, Ленинский район, ул. Большая Морская д. 26. Квартира идеально подойдет для дружной семьи и в качестве инвестиции.

Позвоните нам, чтобы узнать все детали!

Технические характеристики:

  • Адрес: г. Севастополь, Ленинский район, ул. Большая Морская д. 26
  • Год постройки дома: 1951 г.
  • Этаж/этажность: 3/3
  • Количество комнат: 3
  • Комнаты: изолированные
  • Общая площадь: 67,7 м2
  • Жилая площадь: 25,2 м2
  • Площадь кухни гостиной : 23,2 м2
  • Высота потолка: 3 м
  • Санузел: совмещенный
  • Водоснабжение: центральное
  • Горячее водоснабжение: АГВ
  • Отопление: АГВ

Дополнительная информация:

Отличительными характеристиками важно отметить теплые полы с регулировкой в каждой комнате отдельно.  На полу уложена паркетная доска. 
Общая площадь квартиры составляет 67.7 м², кухня-гостиная 25.2 м², санузел 3.7 м². В квартире выполнен дизайнерский ремонт с использованием дорогостоящих материалов, все делалось с любовью и для себя. Установлен двухконтурный газовый котел (АГВ), комфортабельная ванная с доп. функциями.

Позвоните нам, чтобы узнать все детали!

Инфраструктура:

Квартира находится в самом центре города, в районе с развитой инфраструктурой. Рядом остановки общественного транспорта, продуктовые магазины, ТЦ “Диалог”, рестораны и кафе, Приморский бульвар и др.

Подходит для наличного расчета и под ипотеку. 

Документы проверены юристами и готовы к сделке. 

Профессиональное сопровождение до получения права собственности. 

Добавьте предложение в закладки, чтобы не потерять!

Читать подробнее
alt
Анна Линникова
Специалист ОРП
Отдел по работе с покупателями
+79786899214
Или оставьте ваш номер,
и я вам перезвоню

    alt
    Анна Линникова
    Специалист ОРП
    Отдел по работе с покупателями
    +79786899214
    Или оставьте ваш номер,
    и я вам перезвоню

      Объект на карте
      Похожие объекты
      Блог о комфортной жизни