каталог alh компания alt ипотека избранное позвонить
Подать объявление

Двухкомнатная  квартира 50 м2, на 11/ 16 эт

10 800 000
216 000 2
В избранное
Подписаться
2-комнатная
11/16 эт.
Площадь: 50 м2

Двухкомнатная  квартира 50 м2, на 11/ 16 этажного монолитного дома. Расположена в г. Севастополь, Гагаринский район, ул. Степаняна, д. 2а к2.

  Квартира теплая и солнечная, с удобной практичной планировкой, подойдет для проживания семьи, а также для сдачи в аренду.

Позвоните нам, чтобы узнать все детали!

Технические характеристики:

  • Адрес: г. Севастополь, Гагаринский район, ул. Степаняна, д. 2а к2
  • Год постройки дома: 2018
  • Этаж/этажность: 11/16
  • Количество комнат: 2
  • Общая площадь: 50 м2
  • Жилая площадь: 27 м2
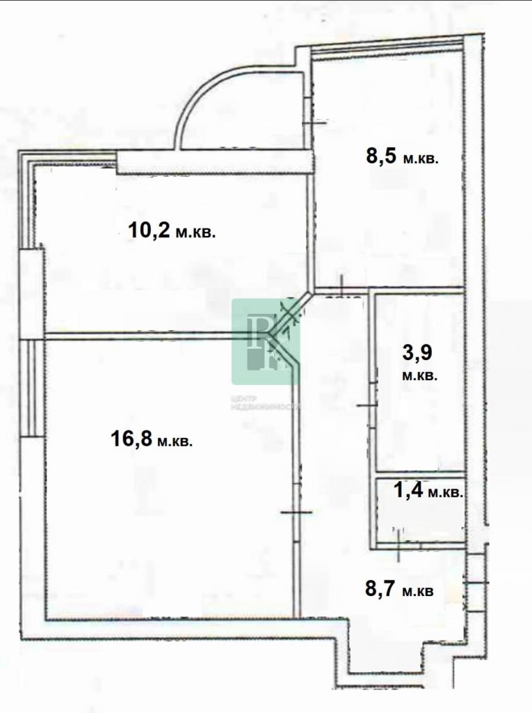
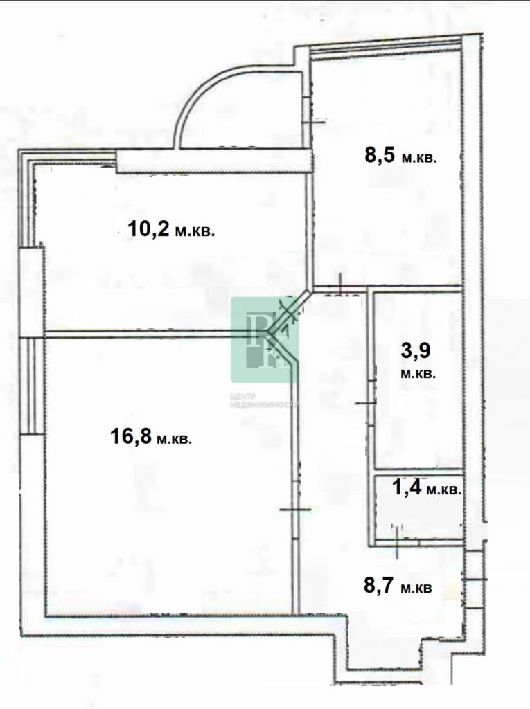
  • Комнаты: 16,8 м2 и 10,2 м2
  • Площадь кухни: 8.5 м2
  • Коридор: 8,7 м2
  • Высота потолка: 2,75 м
  • Санузел: раздельный 3,9 м2 и 1,4 м2
  • Отопление:  своя крышная котельная.

Дополнительная информация:

Квартира без ремонта, горячее водоснабжение от бойлера, установлены пластиковые окна, новая металлическая входная дверь. Тихий и ухоженный двор с детской площадкой, большое количество парковочных мест. 

Позвоните нам, чтобы назначить просмотр!

Инфраструктура:

Квартира находится в одном из востребованных районов города с развитой инфраструктурой. На территории дома большая парковка. Рядом с домом остановка общественного транспорта, школа, детский садик. В пешей доступности Юмашевский рынок, а также одни из лучших мест отдыха города – парк Победы, парк имени А. Ахматовой с прилегающими к ним пляжами. 

 Подходит для наличного расчета, под ипотеку, материнский капитал, жилищные сертификаты. 

Документы РФ проверены юристами и готовы к сделке. 

Профессиональное сопровождение до получения права собственности.

Добавьте предложение в закладки, чтобы не потерять!

Для просмотра и получения дополнительной информации – звоните!

Читать подробнее
alt
Комлева Анастасия
Специалист ОРП
Отдел по работе с покупателями
+79802431274
Или оставьте ваш номер,
и я вам перезвоню

    alt
    Комлева Анастасия
    Специалист ОРП
    Отдел по работе с покупателями
    +79802431274
    Или оставьте ваш номер,
    и я вам перезвоню

      Объект на карте
      Похожие объекты
      Блог о комфортной жизни