каталог alh компания alt ипотека избранное позвонить
Подать объявление

Дом 117 м2 на участке 4 сот. Юхарина Балка

12 700 000
108 547 2
В избранное
Подписаться
Кол-во этажей: 1
Участок:  4 сот
Площадь: 117 м2

Дом 117 м2 на участке 4 сотки СТ, одноэтажный. Расположен в г. Севастополь, ул.Лесхозная, район Юхариной Балки. Коммуникации: электричество, вода, отопление, септик.

Позвоните нам, чтобы узнать все детали!

Технические характеристики:

  • 1 этажный дом, 2025 года постройки
  • Площадь: 117 м2
  • Высота потолка: 2,8 м
  • Ремонт: требуется
  • Электричество: 15 кВт напрямую от Севэнерго
  • Вода: есть скважина
  • Отопление: газгольдер 950 л, теплый пол
  • Канализация: септик переливной

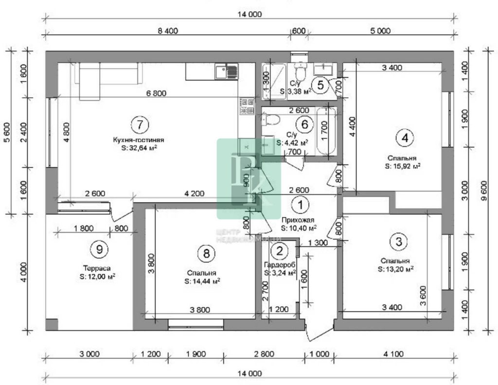
 Планировка дома:

  • Всего 1 этаж: 3 изолированные комнаты
  • кухня-гостиная 32.64 м с панорамными окнами, выходом на террасу (12 м) и придомовую территорию
  • три спальни 13,2 м,15,92 м,14.44 м
  • санузел 8,32 м
  • гардеробная 2,54 м
  • прихожая 10,92 м

  Дом построен из камня ракушняка, с высококачественной строительной отделкой, в стиле хай-тек. Стены в камень с утеплением. Фундамент -монолитная плита 30 см, монолитный каркас, колонны, сейсмопояс по периметру. Крыша из металлопрофиля, утеплена минеральной ватой. Фасад оштукатурен. По всему дома разведена система “Теплый пол”, установлен газовый котел BAXI и подключен к газгольдеру. На окнах металлопластиковые энергосберегающие стеклопакеты. 

Планировка участка:

  •  Участок 4 сотки, статус участка: СТ
  • Территория огорожена забором из металлопрофиля
  • Подъезд по широкой асфальтированной дороге

Участок ровный, правильной формы, облагороженный. Установлены откатные ворота и входная калитка. Забетонирована парковка для автомобиля и дорожка к дому.

Позвоните нам, чтобы назначить просмотр!

Инфраструктура:

Дом расположен вблизи СТ «Южный», с удобной транспортной доступностью. Асфальтированная дорога подходит к участку, остановка общественного транспорта находится в 100 метрах. Быстрый выезд на 5 км, Балаклаву и Ялтинское кольцо.

 

Подходит для наличного расчета и под ипотеку, в т.ч. СЕМЕЙНУЮ.

Документы проверены юристами и готовы к сделке.

Профессиональное сопровождение до получения права собственности.

Добавьте предложение в закладки, чтобы не потерять!

Читать подробнее
alt
Юридическая проверка

alt
Салахутдинова Эльвира
Специалист ОРП
Отдел по работе с покупателями
+79785807607
Или оставьте ваш номер,
и я вам перезвоню

    alt
    Салахутдинова Эльвира
    Специалист ОРП
    Отдел по работе с покупателями
    +79785807607
    Или оставьте ваш номер,
    и я вам перезвоню

      Объект на карте
      Похожие объекты
      Блог о комфортной жизни